Skip to main content Skip to footer

Rosengård, Malmö

Von Lingens väg 29

Välplanerad och orenoverad trea på bästa läge

Väl inkomna i hallen anar vi genast att lägenheten är i behov av en kärleksfull hand. Det fina är att inga halvdana försök att försköna stället har gjorts. Det vi faller för är den harmoniska planeringen med ljus in från två väderstreck och den riktigt stora inglasade balkongen. Gästtoaletten är ytterligare ett plus.
Det krävs inte mycket fantasi för att inse hur vacker denna lägenheten kan bli!

I korthet

Adress Von Lingens väg 29, Malmö
Utgångspris 845 000 kr
Månadsavg. 6 653 kr
Rum 3 rum och kök
Boarea 79,5 Kvm
Våning 5
Hiss Ja
Typ Bostadsrätt
Ägandeform Lägenhet - Bostadsrätt

Mäklare

Mogens Mårtensson

Ansvarig Mäklare

Mogens Mårtensson

073-314 53 71 / mogens.martensson@bulowlind.se

Visning

Tveka inte att höra av dig till mäklaren om du är intresserad av en visning.
Välkommen

Välkommen

Välkommen till Von Lingens väg 29 - Välplanerat trea med fina möjligheter för den som vill renovera

-Stor inglasad balkong 

-Gästtoalett

-Ett orört och ärligt renoveringsobjekt 

Välkommen
Välkommen
Inglasad balkong

Inglasad balkong

 Den stora inglasade balkongen nås både från köket och sovrummet.

Inglasad balkong
Inglasad balkong
Kök

Kök

Köket har sett bättre dagar men är stort och rymligt och har egen utgång till den

inglasade balkongen vilket förstorar det ytterligare.

Kök
Kök
Vardagsrum

Vardagsrum

 Vardagsrummet har vid något tillfälle fått ett nytt golv som ligger ovanpå parkettgolvet.

 

Vardagsrum
Vardagsrum
Mäklaren

Mäklaren

Vad roligt att du är intresserad av den här lägenheten! Vill du veta mer? Tveka inte att kontakta mig på 0733-14 53 71 eller mogens@bulowlind.se

Sovrum 1

Sovrum 1

Sovrum 1 ligger omedelbart till vänster om entrén.

Sovrum 1
Sovrum 2

Sovrum 2

Sovrum 2 ligger i fil med köket och har en egen utgång till balkongen.

Sovrum 2
Sovrum 2
Badrum

Badrum

Badrummet med badkar har en gång i tiden renoverats av föreningen men det är längesedan.

Gästtoalett

Gästtoalett

En gästtoalett är aldrig fel och dessutom väldigt ovanligt i trerumslägenheter.

Hall

Hall

 Hallen/entrén är rymlig och öppnar upp till höger och upplevs då som ytterligare en hall. 

Hall
Hall
Förening

Förening

HSB:s Brf Ida i Malmö har lämnat följande uppgifter om fastigheten. Vi uppmanar den slutlige köparen att själv bekräfta denna information med någon representant för styrelsen.

Föreningens fastigheter byggdes 1968 och består av 738 lägenheter fördelade i 14 bostadshus med totalt 42 trapphus med adresserna Sjöblads väg 1-43 och Von Lingens väg. Föreningen har 2 bostadsrättslokaler. SBC sköter den ekonomiska förvaltningen. En överlåtelseavgift om 1 480 kr samt en eventuell pantsättningsavgift om 592 kr/pant debiteras köparen. Då föreningen är medlem i HSB krävs medlemskap i HSB Malmö för att bli godkänd medlem i Brf Ida. Vid överlåtelse ska anställningsavtal samt lönespecifikationer för de senaste tre månaderna bifogas och ett kvitto på HSB-medlemskapet ska också bifogas. Även tillsyn av lägenheten krävs innan medlemskapet godkänns. 

EKONOMI
Enligt föreningens hemsida är en sänkning av månadsavgiften med 3% planerad till 2026-04-01 med 3%. Föreningen har gemensam el. Den boende betalar efter förbrukning vilken faktureras månadsvis med 5 månaders eftersläpning.

TV & INTERNET
Kabel-TV finns via ComHem, basutbudet ingår i avgiften. Bredband finns via Bahnhof, 1000 mbit/s, ingår i avgiften.

RENOVERINGAR & UNDERHÅLL
2018 nya dörrar till tvättstugorna
2019 infördes gemensam el
2020 moderniserades utemiljön.

Planerade renoveringar/underhåll enligt föreningens hemsida:
Föreningen följer en underhållsplan och det som ligger närmast i tid enligt hemsida är underhållspolning under 2026. Föreningen kommer även att renovera/byta hissar utefter behov och för att skapa en större trygghet för medlemmarna så kommer området att inhägnas. Passagesystemet kommer även under 2026 att bytas ut i sin helhet, vilket innebär att man får nya porttelefoner, nya taggläsare och nya skärmar i entréerna.

PARKERING
Föreningen har 305 garageplatser (432 kr/mån) och 388 utomhusplatser (240 kr/mån). En MC-plats kostar 216:-/mån. Kösystem tillämpas. Cyklar och mopeder skall placeras i cykelställ inomhus eller utomhus. Det finns inhägnade boxar att hyra i låghusen samt finns även cykel/mopedplatser i cykelhusen. Kostnad för cykel 20kr/mån och moped 40kr/mån.
(Priserna ovan är de som sattes 2025).

GEMENSAMT
I källaren på Sjöblads väg 25 finns en föreningslokal som kan hyras av föreningens medlemmar för en kostnad om 500kr / tillfälle.

TVÄTTSTUGA
Tvättstuga finns i källaren, två tvättstugor per huskropp. Föreningen har bokningssystem som gör det möjligt att bland annat boka tvättid online.

Besök gärna föreningens hemsida för mer information: https://www.hsb.se/malmo/brf/ida/

Förening
Fastigheten

Fastigheten

Fastigheten
Fastigheten

Område

Området kring Von Lingens väg är uppskattat för sin lummiga miljö och bekväma närhet till vardagens alla måsten. Inom kort promenadavstånd finns skolor, matbutiker, vårdcentral, restauranger och flera trevliga parker. För pendlare ligger Rosengårds station nära och tar dig snabbt till Malmö C på bara några minuter. Bussförbindelserna längs Amiralsgatan når du också enkelt till fots.

Föredrar du att cykla går det smidigt att ta sig runt, Nobeltorget och Möllevångstorget når du på cirka fem minuter, och stadskärnan ligger ungefär 10–15 minuter bort.

Försäljningsformation, bostadsrätt

ALLMÄN INFORMATION: De uppgifter som lämnas i objektsbeskrivning, prospekt samt i annan annonsering är i huvudsak grundade på information lämnad av säljaren. Viss väsentlig information är också inhämtad ifrån berörd förening och/eller dess förvaltare. Uppgifterna kontrolleras av fastighetsmäklaren endast om omständigheterna ger anledning till det. Köpare/spekulanter uppmanas att kontrollera dessa uppgifter samt annat som är av betydelse för köpet av bostadsrätten.  

 

BUDGIVNING
Vid köp av bostadsrätt är varken säljare eller köpare bunden förrän ett skriftligt köpeavtal undertecknats av båda parter. Innan dess kan säljare och köpare ändra sig utan att motparten kan ställa några krav. Det går bra att lämna bud via sms, mejl eller telefon men när första budet lämnas behöver mäklaren prata med spekulanten för att ta reda på hur dennes situation ser ut med inflyttning, finansiering och andra villkor. Det är viktigt att spekulanten lämnar rätt uppgifter till mäklaren så att budgivningen blir så rättvis och tydlig som möjligt. Säljaren behöver inte sälja till den som givit högsta budet. Fastighetsmäklaren får ej fatta egna beslut i fråga om försäljningen utan det är hela tiden säljaren som bestämmer. Ansvarig mäklare måste alltid vidarebefordra bud som inkommer innan köpeavtal har undertecknats och säljaren avgör sedan om det nya budet ska antas eller avfärdas. Det kan förekomma andra bud än de som vi redovisar på hemsidan. 

Det händer även att spekulanter väljer att lägga så kallade dolda bud, vilket innebär att budet läggs med krav att det inte får kommuniceras till andra spekulanter utan endast till säljaren. Även i detta fall är det mäklarens skyldighet att presentera budet för säljaren, som sedan beslutar sig för om det ska accepteras eller avvisas. 

  
LÅNELÖFTE
För dig som är intresserad och vill lägga bud på bostaden är det viktigt att ha ett lånelöfte. Fastighetsmäklaren behöver få information om vem som är långivare och på så vis får säljaren reda på att det finns ett seriöst bud med godkänd finansiering.
 
BOENDEKOSTNADSKALKYL
Ansvarig fastighetsmäklare tillhandahåller gärna en individuell boendekostnadskalkyl vid förfrågan. Enligt gällande lag finns det en skyldighet från mäklarens sida att erbjuda den slutlige köparen en individuell boendekostnadskalkyl. Den som inte vill lämna ut information om sin privatekonomi eller redan anser sig ha fullgod inblick hur bostadsköpet påverkar hushållets ekonomi har möjlighet att avstå från en sådan kalkyl.
 
ÖVERLÅTELSE- & PANTSÄTTNINGSAVGIFT
Föreningen eller den ekonomiska förvaltaren tar i normalfallet ut en överlåtelseavgift på högst 2,5 % av prisbasbeloppet, det varierar om den faller på säljaren eller köparen. I regel tas också en pantsättningsavgift om 1 % av prisbasbeloppet per pant, om man pantsätter bostaden.
 
UNDERSÖKNINGSPLIKT
Fastighetsmäklaren uppmanar köpare och spekulanter att noggrant undersöka bostadsrättens skick för att fullgöra sin undersökningsplikt enligt Köplagens § 20. Är man som köpare/spekulant osäker på vad detta innebär så uppmanas man härmed att kontakta ansvarig mäklare för frågor kring detta. Undersökningsplikten är förhållandevis långtgående.

 

MÄTINFORMATION
Information om bostadens boarea hämtas i regel från berörd föreningen, dess förvaltare eller säljaren. Boarea kan variera beroende på skillnader mellan olika uppmätningsnormer och spekulanter uppmanas därför att kontrollmäta boarean. Information om hur man mäter upp bostaden kan man få genom fastighetsmäklaren eller på http://www.sis.se/matabostad
 
BANKKONTAKT
Behöver du tips på bra bankkontakt är du varmt välkommen att kontakta ansvarig mäklare som förmedlar kontakt.

 

ÖVRIGT
När du varit i kontakt med Bülow & Lind för visning godkänner du att Bülow & Lind, eller tredje part, kontaktar dig i form av telefonsamtal, sms eller mail på de kontaktuppgifter du lämnat till fastighetsmäklaren vid visningen eller bokningen av visningen.

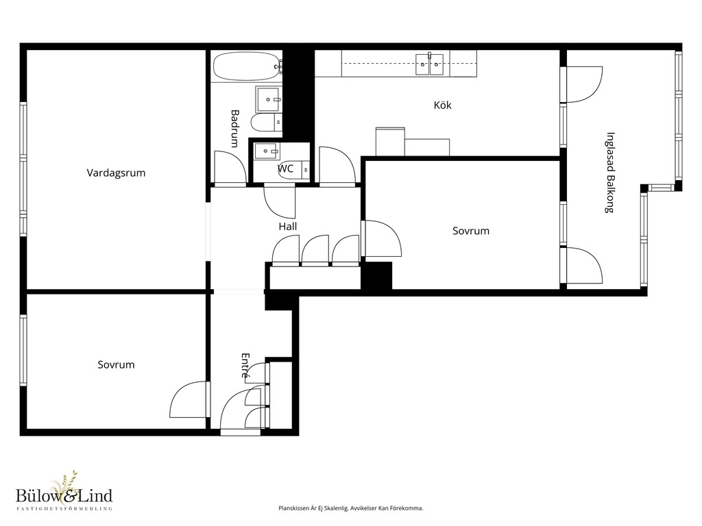
Planlösning

Med reservation för avvikelser

Planlösning

Planlösning

Karta

Fullständig fakta

Utgångspris845 000 kr
Månadsavgift6 653 kr
Ingår i avgiftVärme, vatten, kabel-tv och bredband 1000 Mbit
AdressVon Lingens väg 29
KommunMalmö
OmrådeRosengård
TypBostadsrätt
ÄgandeformLägenhet - Bostadsrätt
Rum3 rum och kök
Boarea79,5 Kvm (Föreningens information)
Våning5
HissJa
FöreningHSB:s Brf Ida i Malmö
Bostadsrättens nettoskuldsättning446 142 kr
Kommentar nettoskuldsättning5 612:-/kvm. Bostadsrättens nettoskuldsättning anger hur stor andel av bostadsrättsföreningens lån som indirekt belastar bostadsrätten. Den baseras på föreningens räntebärande skulder minus föreningens räntebärande tillgångar och likvida medel. Underlag för beräkningen kommer från årsredovisningen för år 2024. I årsredovisningen finns posten övriga fodringar på 513 264:-, då närmare beskrivning av denna post saknas är den enligt reglerna inte medtagen i beräkningen ovan. För mer information kontakta ansvarig fastighetsmäklare.
ByggnadstypFlerfamiljshus
Energiprestanda159 kWh/kvm/år
EnergiklassF
Energideklaration utförd2020-01-07
Driftskostnad0 kr /år

Boka visning

Tveka inte att höra av dig till mäklaren om du är intresserad av en visning.
Von Lingens väg 29, Malmö
Välkommen
Inglasad balkong
Inglasad balkong
Inglasad balkong
Välkommen
Kök
Kök
Kök
Mäklaren informerar
Vardagsrum
Vardagsrum
Vardagsrum
Vardagsrum
Vardagsrum
Vardagsrum
Mäklaren
Sovrum 1
Sovrum 1
Sovrum 2
Sovrum 2
Sovrum 2
Badrum
Gästtoalett
Hall
Hall
Hall
Planlösning
Välkommen
Förening
Förening
Fastigheten
Fastigheten
Fastigheten