Välkommen
Välkommen på visning!
Matplats
Matrum med generösa ytor, här är plats för det riktigt stora matsalsbordet. Den som behöver ett tredje sovrum kan enkelt skilja av emot vardagsrum.
Vardagsrum
Ljust och fint samt med en stilig braskamin centralt placerad. Bokhylleväggen i vardagsrum avser säljarna att montera ner och ta med sig. Om köpare vill så finns det möjlighet att köpa den. Från detta rum så har man även utgång till mysiga uterummet och trädgården.
Uterum
Trevligt med detta mysiga uterum som bjuder på perfekta ytor för både fika och de härliga grillkvällarna i goda vänners lag.
Mäklaren
Vad roligt att du är intresserad av det här radhuset! Vill du veta mer? Tveka inte att kontakta mig på 0731-525434 eller paul@bulowlind.se
Kök
JKE design kök från 2013, modernt och snyggt med gott om förvaring samt fina arbetsytor. Här finns även matplats och man har även härifrån utgång till uterum och trädgård. Kyl och frys från 2025, diskmaskin från 2024, spishäll från 2023, ugn 2013 samt fläkt från 2013.
Badrum
Stiligt badrum med dusch från 2009, här har man kaklade väggar samt klinkergolv (golvvärme). generöst med skåpsutrymmen med både kommod samt överskåp med belysning. Ut emot trädgården har man ett fönster vilket bidrar till det fina ljusflödet. Bakom skiljevägg vid dusch har vi tvättdelen med tvättpelare.
Sovrum
Med nuvarande planlösning har vi två fina sovrum, här är både plats för sängen och mer därtill. I det ena sovrummet finns det garderober som säljarna kommer att ta med sig. De som har behov av ett tredje sovrum kan skilja av matrummet från vardagsrum och på så sätt enkelt skapa ett sovrum med gott om plats.
Hall
Välkomnande hall som på ett trevligt vis öppnar upp emot övriga bostaden. Den del av hall som ligger vid sovrum/badrum är möblerbar, trevligt...
Trädgård
Mycket välskött södervänd trädgård som bjuder på mycket sol. Här är plats både för solbad och barnens lek och stoj.
Framsida
Välkommen till Månbergagatan 21
Mäklaren informerar
SMÅHUSENHET, HELÅRSBOSTAD FÖR 1-2 FAMILJER (220) (220)
Byggnad, totalt värde: 2 177 000 kr
Mark, totalt värde: 1 696 000 kr ().
Summavärde: 3 873 000 kr
Taxeringsår: 2024
Byggår: 1960
Värdeår: 1960
Pantbrev: Fyra st. datapantbrev på totalt 100 000:-
Område
Här bor du i en barnvänlig och idyllisk miljö på ett lugnt läge där naturen alltid finns runt hörnet. Bara 100 meter utanför dörren väntar natursköna Bulltofta Rekreationsområde – ett stort grönområde med slingrande motionsspår, sjöar, skogsstigar, minigolf, grillplatser och härliga pulkabackar vintertid.
I området finns flera fina lekplatser, gott om förskolor och den populära Risebergaskolan når du på cirka sex minuters promenad eller 1 minut på cykel. Perfekt för familjer med aktiva dagar och smidiga lämningar.
Bara ca 450 meter bort ligger busshållplatsen som snabbt tar dig vidare genom Malmö. Dessutom har du nära till det mesta i vardagen – Toftanäs med bland annat välsorterade Ica Maxi, ÖoB, Dollarstore, frisör, restaurangen Heat och flera olika gym ligger inom kort promenadavstånd. På Stora Bernstorp hittar du även exempelvis Costco, City Gross, Hornbach och Bauhaus. För golfentusiasten finns även Kvarnby Golfklubb bekvämt nära.
Med både Yttre och Inre Ringvägen inom snabb räckvidd är det lätt att ta sig dit man vill, oavsett om målet är centrala Malmö eller en tur över sundet till Danmark.
Kort och gott: ett mycket trivsamt och rofyllt område med gott om gröna miljöer – en idyll för barnfamiljer!
Försäljningsinformation, fastighet
ALLMÄN INFORMATION: De uppgifter som lämnas i objektsbeskrivning, prospekt samt i annan annonsering är i huvudsak grundade på information lämnad av säljaren. Viss väsentlig information är också inhämtad ifrån Lantmäteriet. Uppgifterna kontrolleras av fastighetsmäklaren endast om omständigheterna ger anledning till det. Köpare/spekulanter uppmanas att kontrollera dessa uppgifter samt annat som är av betydelse för köpet av fastigheten.
BUDGIVNING
Vid köp av fastighet, tomträtt eller bostadsrätt är varken säljare eller köpare bunden förrän ett skriftligt köpeavtal undertecknats av båda parter. Innan dess kan säljare och köpare ändra sig utan att motparten kan ställa några krav. Det går bra att lämna bud via sms, mejl eller telefon men när första budet lämnas behöver mäklaren prata med spekulanten för att ta reda på hur dennes situation ser ut med inflyttning, finansiering och andra villkor. Det är viktigt att spekulanten lämnar rätt uppgifter till mäklaren så att budgivningen blir så rättvis och tydlig som möjligt. Säljaren behöver inte sälja till den som givit högsta budet. Fastighetsmäklaren får ej fatta egna beslut i fråga om försäljningen utan det är hela tiden säljaren som bestämmer. Ansvarig mäklare måste alltid vidarebefordra bud som inkommer innan köpeavtal har undertecknats och säljaren avgör sedan om det nya budet ska antas eller avfärdas.
Det händer även att spekulanter väljer att lägga så kallade dolda bud, vilket innebär att budet läggs med krav att det inte får kommuniceras till andra spekulanter utan endast till säljaren. Även i detta fall är det mäklarens skyldighet att presentera budet för säljaren, som sedan beslutar sig för om det ska accepteras eller avvisas.
LÅNELÖFTE
För dig som är intresserad och vill lägga bud på bostaden är det viktigt att ha ett lånelöfte. Fastighetsmäklaren behöver få information om vem som är långivare och på så vis får säljaren reda på att det finns ett seriöst bud med godkänd finansiering.
BOENDEKOSTNADSKALKYL
Ansvarig fastighetsmäklare tillhandahåller gärna en individuell boendekostnadskalkyl vid förfrågan. Enligt gällande lag finns det en skyldighet från mäklarens sida att erbjuda den slutlige köparen en individuell boendekostnadskalkyl. Den som inte vill lämna ut information om sin privatekonomi eller redan anser sig ha fullgod inblick hur bostadsköpet påverkar hushållets ekonomi har möjlighet att avstå från en sådan kalkyl.
LAGFART & PANTBREV
Lagfartsavgiften (stämpelskatten) är f n 1,5 % av köpeskillingen samt en avgift på f n 825 kr som betalas av köparen. Köparen står även för kostnaden vad gäller uttagande av nya pantbrev, som för närvarande är 2 % av pantbrevsbeloppet samt en avgift på f n 375 kr per pantbrev.
UNDERSÖKNINGSPLIKT
Fastighetsmäklaren uppmanar köpare och spekulanter att noggrant undersöka fastighetens skick för att fullgöra sin undersökningsplikt enligt Jordabalken 4:19. Är man som köpare/spekulant osäker på vad detta innebär så uppmanas man härmed att kontakta ansvarig mäklare för frågor kring detta. Undersökningsplikten är förhållandevis långtgående. Till sin hjälp kan man exempelvis anlita en godkänd besiktningsman.
MÄTINFORMATION
Information om fastighetens areor hämtas i regel från Lantmäteriet eller säljaren. Boarea kan variera beroende på skillnader mellan olika uppmätningsnormer och spekulanter uppmanas därför att kontrollmäta boarean. Information om hur man mäter upp bostaden kan man få genom fastighetsmäklaren eller på http://www.sis.se/matabostad
BANKKONTAKT
Kontakta gärna mäklaren för att få en bra bankkontakt.
ÖVRIGT
När du varit i kontakt med Bülow & Lind för visning godkänner du att Bülow & Lind, eller tredje part, kontaktar dig i form av telefonsamtal, sms eller mail på de kontaktuppgifter du lämnat till fastighetsmäklaren vid visningen eller bokningen av visningen.
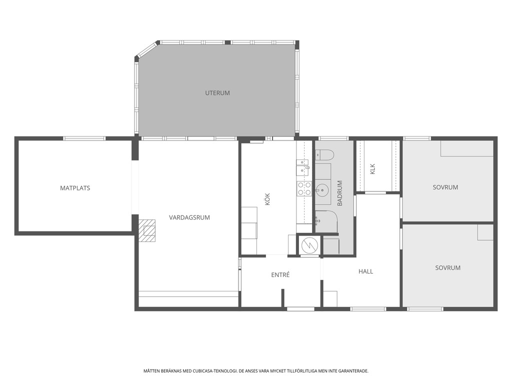
Planlösning
Med reservation för avvikelser
Planlösning